L House es una vivienda unifamiliar ubicada en una zona de baja densidad de población a los pies de una loma de encinares. Se levanta en una parcela con lindes viarios a norte y a oeste y con un fuerte desnivel de más de 5 metros en dos direcciones.
Se decide ubicar la construcción en la esquina noroeste de la parcela y desarrollarla en una geometría de planta en L para maximizar el aporte de luz solar y enmarcar las vistas sobre el encinar. Así, las fachadas exteriores de la L se cierran al tráfico rodado y las viviendas cercanas, mientras que las interiores se vuelcan hacia dentro de la parcela, donde se ubica la piscina y abundante vegetación, y las vistas al encinar.
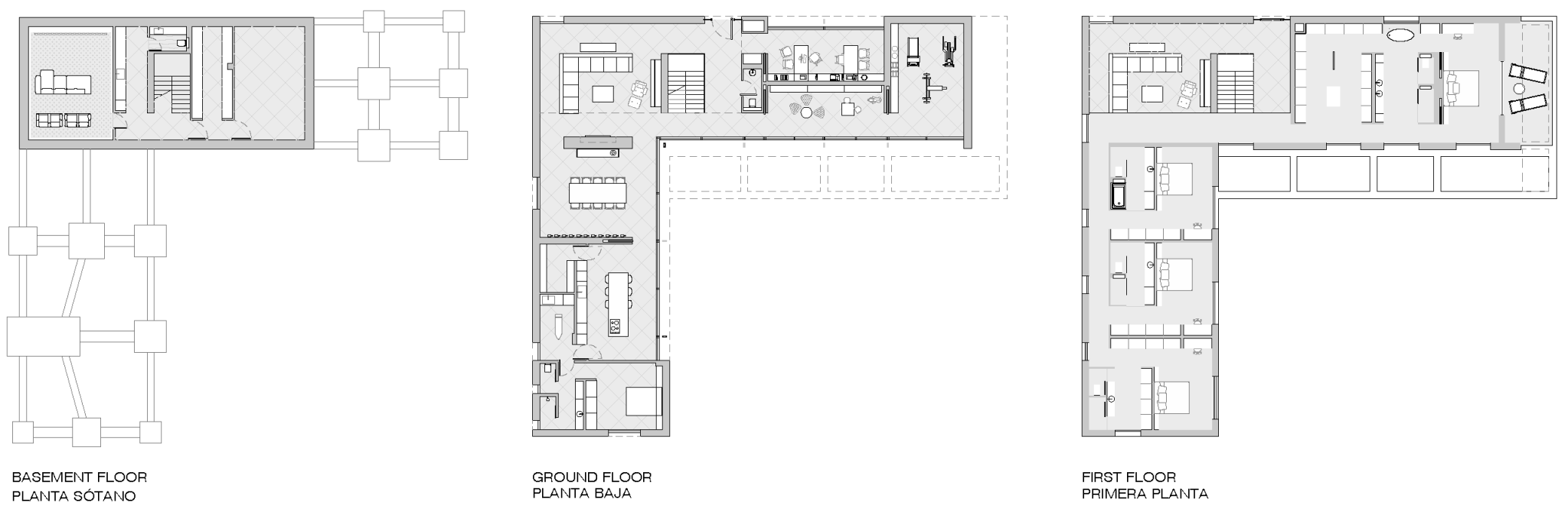
La planta baja, que alberga la zona de día, se abre al sur y al este; mientras que la planta primera, con el programa de noche, se orienta por completo hacia el este, donde se ubica la loma a través de la cual amanece.
En una planta en L la rótula de unión entre los dos brazos es un punto singular del proyecto y es ahí donde se encuentra la entrada y el salón a doble altura. Anexos a él se desarrollan el comedor y la cocina, muy ligados visualmente a la piscina. En el otro brazo de la L en planta baja se ubica la zona de juegos, el aseo de respeto, el gimnasio y el despacho, único espacio que vuelca hacia el exterior de la L para captar la luz homogénea de norte y situarse al lado de la entrada, permitiendo que las visitas laborales no interfieran en la rutina doméstica.
En planta primera se encuentra la Master Bedroom, con un gran vestidor y baño y con visuales privilegiadas hacia el encinar que se extienden en una terraza privada.
Otros tres dormitorios, todos ellos con baño en suite y con visuales hacia la loma en orientación este, completan la planta superior.
En el sótano, además de almacenes e instalaciones, se ubica el cine, que cuenta con un bar y un aseo anexo.
La división entre todos estos espacios se realiza mediante costillas perpendiculares a la L que albergan la estructura y permiten liberar la fachada para crear una piel de vidrio interior con visuales ininterrumpidas.
En el exterior, se juega con los propios relieves del terreno para zonificar los usos y crear una entrada peatonal en pendiente ascendente, claramente inspirada en los templos grecorromanos.
Arquitectura y diseño: Destudio
Fotografías: Rafa Dieguez
Vídeo: José Ignacio del Barrio












