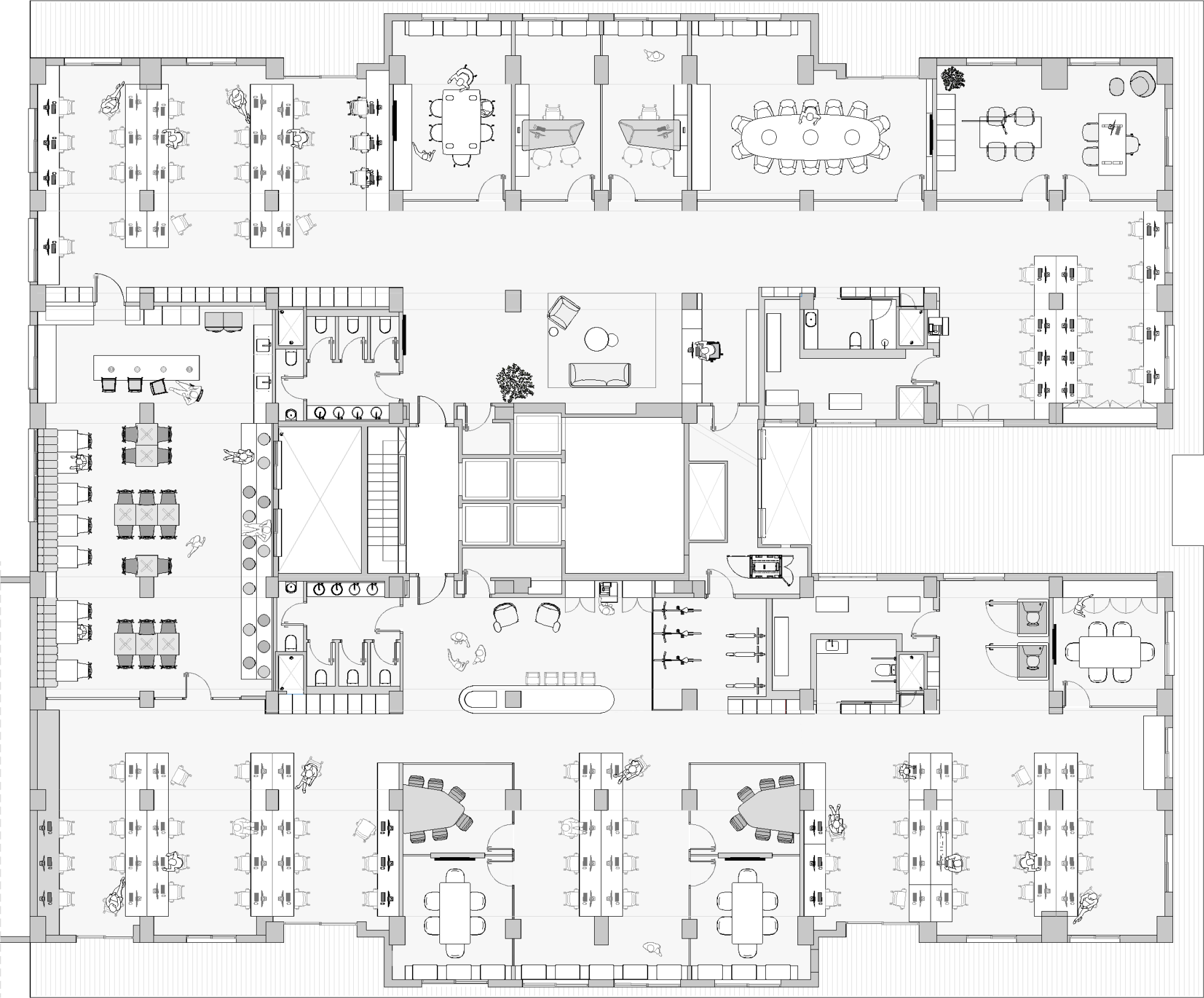
Las oficinas de Prosolia plantean el reto de crear un espacio de trabajo de 1.000 m2 para 70 trabajadores en un local con poca altura y una gran cantidad de pilares poco separados entre ellos. Una de las fachadas de este “bosque de pilares”, eso sí, tiene una amplia perspectiva sobre los jardines del Turia de Valencia.
Después de definir minuciosamente el programa de necesidades con el cliente, se decide fabricar a medida grandes mesas de trabajo entre los ejes de pilares, liberando así, como espacio de circulación, las luces entre el bosque.
Las salas de reuniones y los despachos ejecutivos se emplazan en la fachada con vistas sobre el parque, siendo ésta la parte más visitada por los clientes de la empresa, e integrando por tanto ahí la recepción y zona de espera.
La otra ala de la oficina alberga por tanto mayor número de trabajadores, así como salas de reuniones internas, un parking para patinetes y cabinas de vídeo-llamadas.
Un espacio singular entre estas dos alas es el gran comedor polivalente, ya que hace las veces de auditorio para reuniones de toda la empresa gracias a un graderío que recorre uno de sus laterales.
Debido a la poca altura libre del local, se solucionan las instalaciones a la vista, ya sean conductos de climatización, de renovación de aire o sistemas eléctricos y de datos. Esta solución técnica confiere ya de por sí un carácter estético a las oficinas, resultando una imagen juvenil y tecnológica que se acompaña dejando numerosos materiales crudos, como barras de acero inoxidable, techos proyectados o maderas naturales. Todo ese continente frío, de materiales en crudo, se rellena de contenido llamativo gracias a la abundante vegetación y a la elección de mobiliario tapizado con colores atrevidos, como naranjas o amarillos, especialmente en el mobiliario de las zonas de distensión que unen las diferentes áreas de trabajo.
En la elección de materiales se pone especial énfasis a la acústica de la oficina, que es muy relevante para espacios de trabajo con un aforo tan grande como éste. Las moquetas en el pavimento, las superficies rugosas de los techos y tapizados, la vegetación, así como el doble acristalamiento de mamparas, ayudan en este sentido.
Arquitectura, diseño y construcción: Destudio
Fotografías: David Zarzoso
Destudio somos un estudio de arquitectura, diseño, construcción e interiorismo formado por un equipo multidisciplinar de profesionales que realizamos proyectos residenciales, de farmacias, de retail y de oficinas, entre otras especialidades, ubicados en diferentes ciudades.
Enfocamos nuestros proyectos desde el compromiso no solo con la estética y la funcionalidad, sino también con la sostenibilidad y la economía. Esto lo conseguimos haciendo una gestión integral del proyecto y cuidando de todo el proceso hasta la entrega final de la obra.
Cada uno de nuestros proyectos debe adaptarse al entorno en el que debe existir y para ello nos autoexigimos precisión en el diseño e innovación en nuevas tecnologías y materiales, además de una conciencia sostenible que debe estar reflejada no solo en el proceso de la obra, sino también en el resultado final.
Contamos con un equipo propio de construcción y ejecución integral de la obra para cuidar todos esos detalles y poder entregar el proyecto llave en mano.
A ello le sumamos nuestro trabajo de interiorismo, centrado en el diseño de mobiliario a medida y la definición de los proyectos hasta el último detalle.
Todo ello es posible gracias a un capital humano que es la gran fuerza del estudio, con profesionales que disfrutan con la excelencia en su trabajo y vuelcan toda su ilusión en que se cumplan los objetivos de nuestros clientes.



