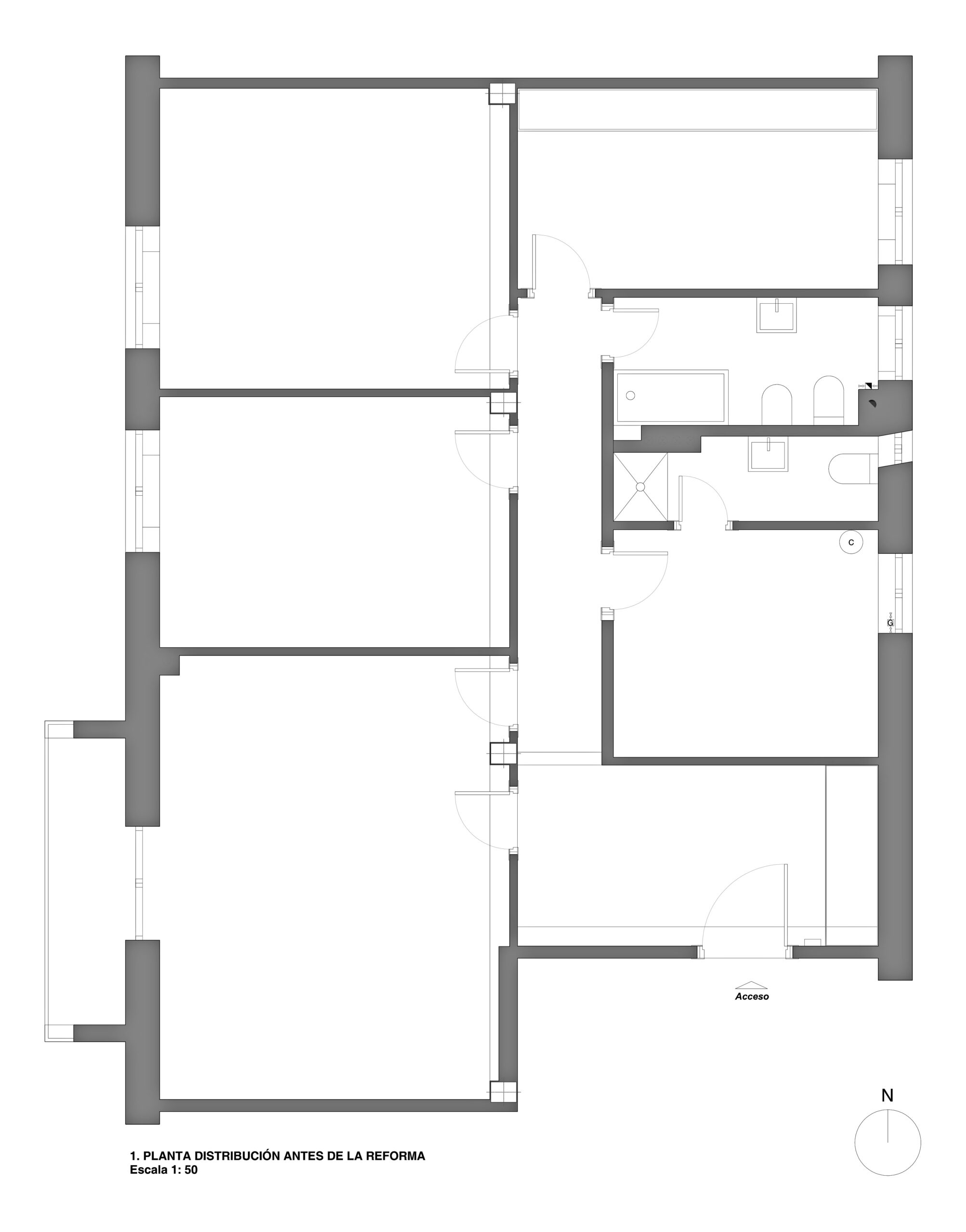
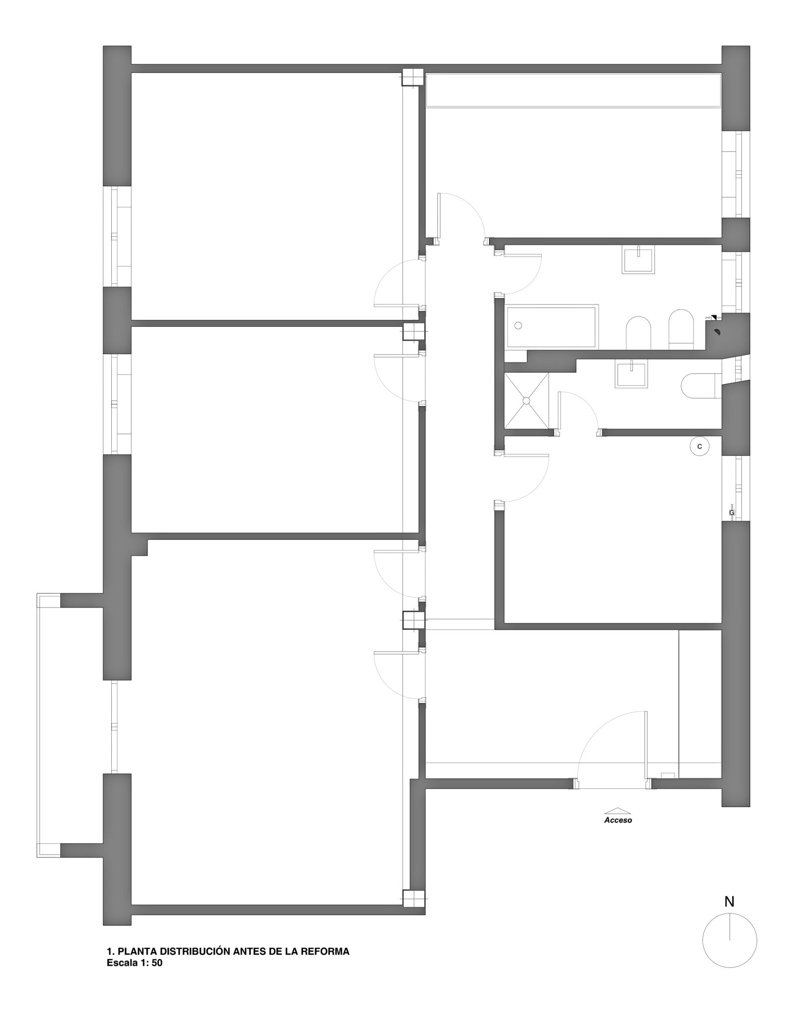
Carlos y Lucía acuden a nuestro estudio porque ha llegado el momento de mudarse a Madrid y desean que su casa sea preciosa. Quieren una vivienda a la que siempre den ganas de volver…(lo que deseamos todos!, ¿a que sí?). Nos dijeron el programa que se debía encajar en la vivienda, sus aficiones, sus necesidades y gustos, y nos dejaron plena libertad para proponer las soluciones funcionales y estéticas. Así que arriesgamos, y el resultado es el que os mostramos a continuación.
Fotografías: Carla Capdevila
Constructora: MRS Constructores
Costo del proyecto: 100.000 – 150.000€












