La vivienda que proponemos surge de las reflexiones sobre varios frentes que condicionaron el punto de partida del proyecto.
La casa se ubica en un pueblo precioso de Soria y ,tras visitarlo, concluimos que el respeto por el entorno es una de las principales premisas. El concepto global de la propuesta parte de la vivienda tradicional de muros de piedra y cubierta de teja. Por eso conservamos la tipología de casa existente, compacta y rotunda, ocupando la totalidad de la parcela. Nos adaptamos a la edificación por el lado de la carretera, respetando la linea de cornisa de las viviendas colindantes y evitamos ser invasivos con la altura de la fachada que da a la plaza, donde está el acceso principal a la vivienda, ya que en este punto las casas existentes son más bajas.
Para que el paisaje existente forme parte de la vivencia diaria de la casa, potenciamos intencionadamente la relación “dentro-fuera” de la vivienda mediante una celosía de madera que funciona como una segunda piel. Ésta es protagonista en las dos fachadas más largas de la vivienda y se abre o se cierra según las necesidades de cada estancia.
El siguiente factor importante es la búsqueda de la luz y del paisaje. Buscamos toda la luz del sol posible abriendo la casa a norte y sur, en fachadas enfrentadas, de forma que disfrutamos de vistas cruzadas.
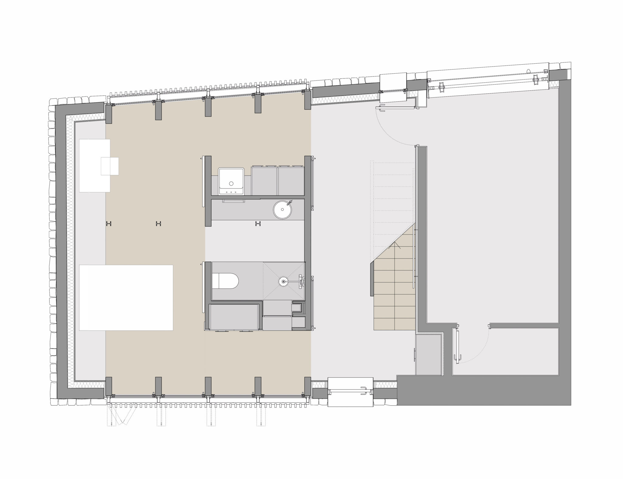
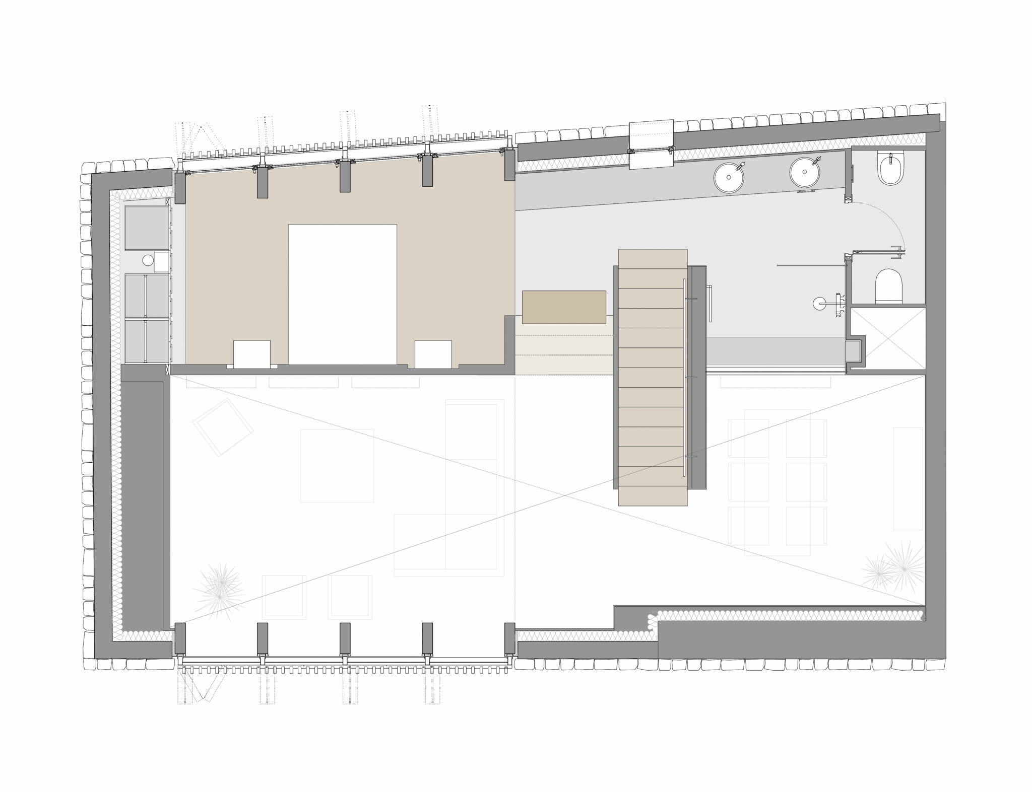
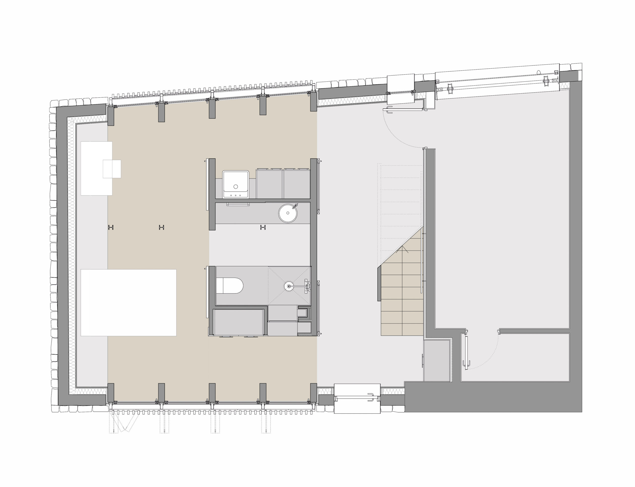
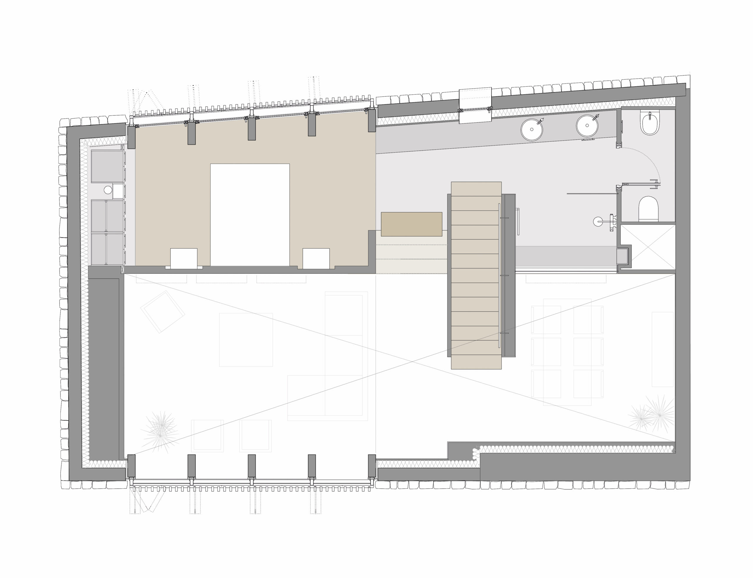
Dividimos la planta en dos bandas longitudinales que se diferencian, no sólo en los usos, sino también en sus niveles y en la forma de relacionarse entre sí.
En planta baja la fachada norte recoge las zonas habitualmente menos utilizadas (lavandería, habitación eventual) dejando que la habitación de invitados y el baño asociado a ella disfruten de la comunicación directa con la plaza. La intimidad de la habitación, así como del resto de estancias asociadas a las cristaleras, se consigue mediante estores interiores que pueden abrirse de abajo arriba o viceversa, lo que da un juego de movimiento mayor aún en la fachada.
Al subir al siguiente nivel la percepción de la vivienda cambia por completo, ya que los tres niveles de cocina-salón-habitación principal están comunicados entre sí y se establece, gracias al uso del mobiliario, un juego sugerente entre qué se ve y qué no desde cada estancia. Nunca se pierde, sin embargo, la sensación de espacio abierto, no sólo en el interior, sino también hacia el exterior.
Ficha de proyecto:
Autores y Dirección de obra : La Reina Obrera (Arquitectas : Ana Andrés y Helena Agurruza)
Superficie útil: 225 m2
Contratista: Hot Tabasco SL
Fotografías: Álvaro de la Fuente, La Reina Obrera y BAM.

























