Mecanismo es un estudio de arquitectura fundado por Marta Urtasun y Pedro Rica en 2012 y que actualmente cuenta con oficinas en Madrid y San Sebastián.
Estamos centrados en la producción y ejecución de proyectos, sistemas y productos relacionados con el diseño y la arquitectura. Nuestra labor en ellos comprende el control completo del proceso de diseño, pasando por las diferentes fases del proyecto, hasta la ejecución de todos los detalles.

Casa en Huerta de Rey
Burgos es la provincia española con más pueblos. La mayoría de ellos, en proceso de despoblación.
Este fenómeno de vaciado social, tiene una repercusión directa en la arquitectura local, en muchos casos en decadencia y proceso de ruina. Esta situación da lugar a un entorno característico repleto de construcciones, que en su día dieron cabida a una prolífica actividad que mantenía una población rural activa.

Actualmente estos lugares, son focos vacacionales que durante el resto del año, mantienen una serenidad un tanto melancólica. Huerta de Rey, es un claro ejemplo de ello.
Y es este contexto el que define el carácter de la vivienda y su pretensión por integrarse en el entorno rural decaído característico que la rodea.

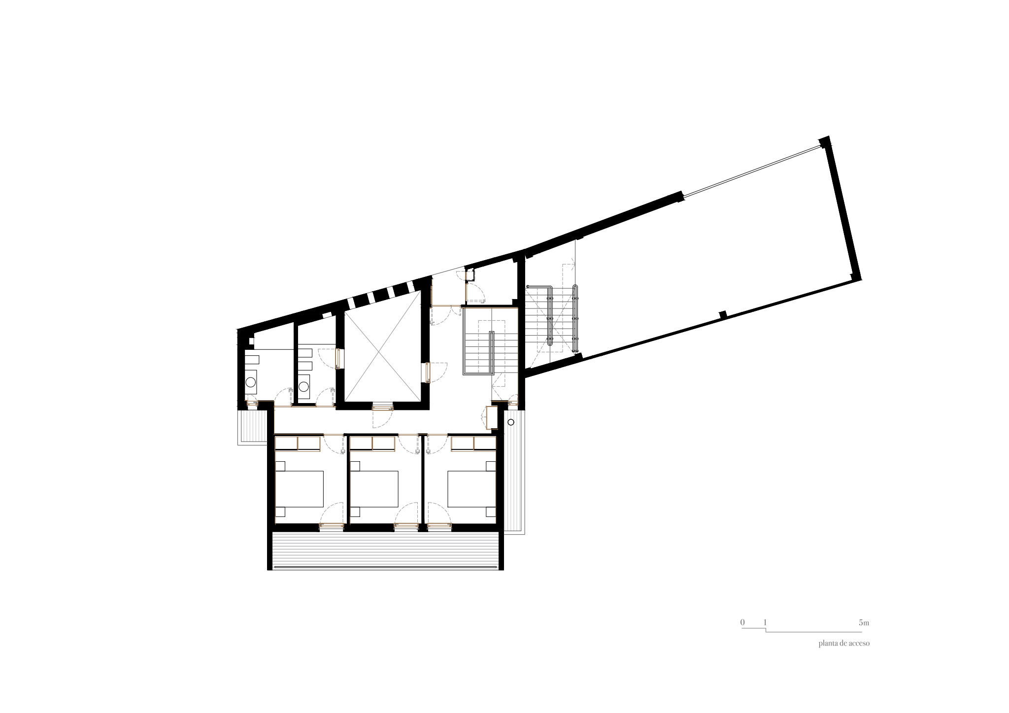
La parcela se encuentra entre dos calles que la limitan en sus linderos norte y sur. Estas calles están situadas a diferente altura respecto a la parcela, la calle norte, tres metros por encima y la sur por debajo.
Es a lo largo del lindero norte, donde se implanta la vivienda dejando libre el resto de la parcela orientada a sur. Resuelve el contacto con la calle creando un muro hermético de bloque cerámico que aísla la vivienda de la orientación más desfavorable y la privatiza con respecto a la calle. Solamente este muro se abre ligeramente en su parte central, dando lugar al acceso y con una celosía que descubre el patio de doble altura, que baja hasta la cota inferior de la vivienda.

La casa se estructura en dos partes claramente identificables por estar resueltas con materiales diferentes. La primera que da lugar a un gran muro de bloque cerámico, que encara la fachada norte y funciona como basamento en la cota del jardín, y es en la que se alojan todos los espacios de carácter común, baños en el piso superior, y salón comedor, cocina y aseo en a cota de jardín.
Suspendido y conectado en el nivel superior al volumen de bloque, emerge una pieza de hormigón bruto que vuela hacia el sur formando bajo ella el porche y que contiene los tres dormitorios.

De esta manera se genera un esquema funcional claro, coincidente con la estructura y la materialidad del proyecto.
Los espacios están ordenados optimizando la funcionalidad y posicionándose dentro del la vivienda según su grado de privacidad. Siempre priorizando la óptima iluminación natural y protegiéndose de la incidencia directa del sol mediante vuelos, lo que contribuye, a junto a la orientación controlada de los huecos y la situación semi enterrada de la planta baja, a la regulación térmica natural de la vivienda.

Los materiales empleados tienen que ver con la situación y la integración de la vivienda en el contexto y su adaptación a un presupuesto de ejecución limitado. El bloque cerámico colocado a hueso y de diferente manera en cada situación, da lugar a una fachada ventilada con textura y dinamismo. El hormigón picado, se muestra en su estado más primitivo resaltando su naturaleza pétrea rugosa e irregular.
En el interior, materiales naturales. El granito y la madera de roble se combinan en panelados y solados dando lugar a un ambiente cálido.
Todo ello da forma a una casa que responde de manera integral a la naturaleza rural que la rodea.

